House plans - Archipelag
Contact
Languages:
House plans
under 120m²
House plans
(120m²-160m²)
House plans
over 160m²
All
house plans
NEW house plans
Home page
»
House plans
»
House plan
Next house plan
Previous house plan
List of house plans
Rodrigo G2
Available house plan versions:
Version 1
,
Version 2
,
Version 4
,
Version 6
Author: Artur Wójciak
Next house plan
Previous house plan
List of house plans
Recommended house plans
Tom G1
Izabela II
Bona
Wanda
Mika
Leonardo G2
Rodrigo II G1
Anita
Diego G2
Roma
Donny G1
Izabela
Lorenzo G2
Margarita
Nati G2
Hort
Print
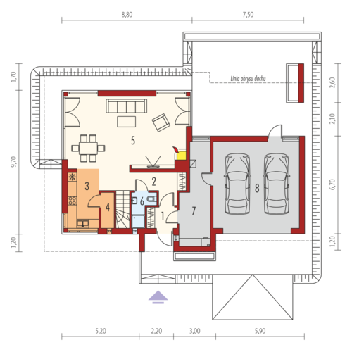
Usable area:
122.65m²
Interior area:
204.80m²
• Garage
32.56m²
• boiler-room
11.76m²
• Basement
None
• Attic
None
Description and Visualization
Plans
Elevations
House plan animation
Project realizations
Mirror reverse format
Order a house plan
Ask a question
Send this link to your friend
Advanced search
Name
Kind
house
summer house
garage
Type
- Any -
one-storied
with
multi-storied house
Category
- Any -
by character
affordable
small
Author
- Any -
Area [m²]
To
Garage
- Any -
no
bay #1
bay#2
Basement
- Any -
No
Yes
Orangery
- Any -
No
Yes
Plot dimensions (length / width)
[m]
x
House height [m]
Roof angle [°]
Buildings
- Any -
stand alone house
duplex
row houses
Find a house plan
House plans
What does a house plan include?
Changes in a plan
Realisations
About us
Text search
Search
PL
EN
CZ
LT
RU
BY
UA