House plans - Archipelag
Contact
Languages:
House plans
under 120m²
House plans
(120m²-160m²)
House plans
over 160m²
All
house plans
NEW house plans
Home page
»
House plans
»
House plan
Next house plan
Previous house plan
List of house plans
Fred G1
Author: Jowita Gross-Mazurska, Artur Wójciak
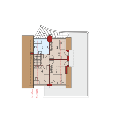
1. Vestibule
2.73 m²
5. Study
10.33 m²
2.
14.07 m²
6. Bathroom
3.79 m²
3. Kitchen
8.35 m²
7. Boiler room
4.93 m²
4. Day-time stay room, dining-room
37.24 m²
8. Garage
18.52 m²
1. Corridor
2.43 m²
4. Bedroom
8.86 m²
2. Bedroom
12.73 m²
5. Bathroom
6.55 m²
3. Bedroom
10.98 m²
Next house plan
Previous house plan
List of house plans
Recommended house plans
Sari G1
Justi II G1
Nikodem G1
Ernestyna
Tina G1
Arizona II G1
Ben G1 (with a basement)
Ozay G1
Percy
E13 G1 ENERGO PLUS
Chess
Tobby G1 ENERGO
Kalisto
Arizona G1
Nicki A ENERGO
Mai
Print
Usable area:
118.06m²
Interior area:
166.93m²
• Garage
18.52m²
• boiler-room
4.93m²
• Basement
None
• Attic
None
Description and Visualization
Plans
Elevations
House plan animation
Project realizations
Mirror reverse format
Order a house plan
Ask a question
Send this link to your friend
Advanced search
Name
Kind
house
summer house
garage
Type
- Any -
one-storied
with
multi-storied house
Category
- Any -
by character
affordable
small
Author
- Any -
Area [m²]
To
Garage
- Any -
no
bay #1
bay#2
Basement
- Any -
No
Yes
Orangery
- Any -
No
Yes
Plot dimensions (length / width)
[m]
x
House height [m]
Roof angle [°]
Buildings
- Any -
stand alone house
duplex
row houses
Find a house plan
House plans
What does a house plan include?
Changes in a plan
Realisations
About us
Text search
Search
PL
EN
CZ
LT
RU
BY
UA