House plans - Archipelag
Contact
Languages:
House plans
under 120m²
House plans
(120m²-160m²)
House plans
over 160m²
All
house plans
NEW house plans
Home page
»
House plans
»
House plan
Next house plan
Previous house plan
List of house plans
EX 16 II G1 Soft
Available house plan versions:
Version 2
,
Version 4
Author: Artur Wójciak
Next house plan
Previous house plan
List of house plans
Recommended house plans
Lucy G1
Kaja II G1
Benjamin II G2 ENERGO
Bronka
Ksena G1
Samanta
Pablo G1
E10 ENERGO PLUS
Euzebio
Miriam G2
E6 G1 ECONOMIC A
Greta G2
Olivia
Zusman G1
Josephine G1
Olaf G2
Print
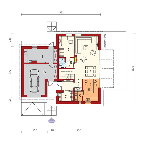
Usable area:
148.01m²
Interior area:
225.50m²
• Garage
29.93m²
• boiler-room
16.13m²
• Basement
None
• Attic
None
Description and Visualization
Plans
Elevations
House plan animation
Project realizations
Mirror reverse format
Order a house plan
Ask a question
Send this link to your friend
Advanced search
Name
Kind
house
summer house
garage
Type
- Any -
one-storied
with
multi-storied house
Category
- Any -
by character
affordable
small
Author
- Any -
Area [m²]
To
Garage
- Any -
no
bay #1
bay#2
Basement
- Any -
No
Yes
Orangery
- Any -
No
Yes
Plot dimensions (length / width)
[m]
x
House height [m]
Roof angle [°]
Buildings
- Any -
stand alone house
duplex
row houses
Find a house plan
House plans
What does a house plan include?
Changes in a plan
Realisations
About us
Text search
Search
PL
EN
CZ
LT
RU
BY
UA