House plans - Archipelag
Contact
Languages:
House plans
under 120m²
House plans
(120m²-160m²)
House plans
over 160m²
All
house plans
NEW house plans
Home page
»
House plans
»
House plan
Next house plan
Previous house plan
List of house plans
Eliot G1
Author: Artur Wójciak
1. Vestibule
2.88 m²
5. Daily room
18.14 m²
2.
12.49 m²
6. Toilet
1.48 m²
3. Kitchen
7.03 m²
7. Boiler room
4.01 m²
4. Dining room
10.34 m²
8. Garage
22.15 m²
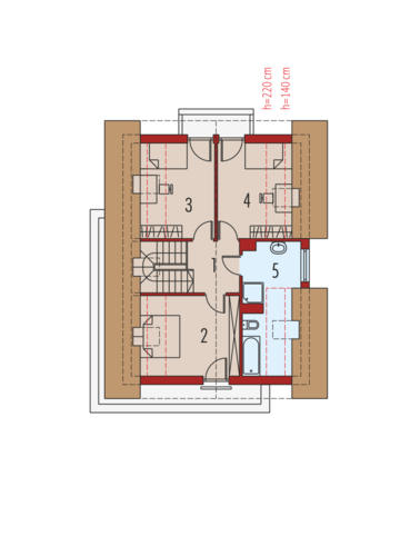
1. Corridor
4.78 m²
4. Bedroom
10.13 m²
2. Bedroom
12.22 m²
5. Bathroom
9.03 m²
3. Bedroom
10.13 m²
Next house plan
Previous house plan
List of house plans
Recommended house plans
E13 G1 ECONOMIC
Adas
E14 III G1 ECONOMIC
E14 G1 ECONOMIC
Percy
E3 G1 ECONOMIC A
Aga II G1
E13 II G1 ECONOMIC
Alma
Melise G1
Adriana II
Kongale
Tim
E11 ECONOMIC
Bassy G1
Heli G1
Print
Usable area:
98.65m²
Interior area:
153.04m²
• Garage
22.15m²
• boiler-room
4.01m²
• Basement
None
• Attic
None
Description and Visualization
Plans
Elevations
House plan animation
Project realizations
Mirror reverse format
Order a house plan
Ask a question
Send this link to your friend
Advanced search
Name
Kind
house
summer house
garage
Type
- Any -
one-storied
with
multi-storied house
Category
- Any -
by character
affordable
small
Author
- Any -
Wójciak A.
Wójciak R.
Chmiel-Sobieralska J.
Fryszka A.
Górna A.
Jaworski M.
Marcjasz A.
Oczkowski M.
Romanowicz R.
Romanowicz M.
Tatarek A.
Chruszczewski Ł.
Jankowski E.
Kowalski A.
Krajewska-Ludwiczuk A.
Owocka A.
Pik G.
Simla M.
Szczepański W.
Area [m²]
To
Garage
- Any -
no
bay #1
bay#2
Basement
- Any -
No
Yes
Orangery
- Any -
No
Yes
Plot dimensions (length / width)
[m]
x
House height [m]
Roof angle [°]
Buildings
- Any -
stand alone house
duplex
row houses
Find a house plan
House plans
What does a house plan include?
Changes in a plan
Realisations
About us
Text search
Search
PL
EN
CZ
LT
RU
BY
UA