House plans - Archipelag

                                       

Contact Languages: Languages:
E6 G1 ECONOMIC B
Available house plan versions: Version 1 , Version 2 Author: Artur Wójciak
 
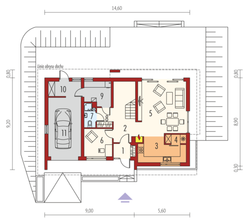
1. Vestibule2.67 m² 7. Bathroom2.68 m²
2. Hall13.11 m² 8. Wardrobe3.19 m²
3. Kitchen10.33 m² 9. Boiler room5.99 m²
4. Pantry1.84 m² 10. Garden closet4.82 m²
5. Day-time stay room, dining-room26.72 m² 11. Garage19.43 m²
6. Study7.80 m²
 
1. Corridor7.72 m² 5. Bedroom12.34 m²
2. Bedroom21.92 m² 6. Bedroom12.96 m²
3. Bathroom6.62 m² 7. Bathroom6.97 m²
4. Wardrobe9.45 m² 8. Wardrobe2.67 m²

Recommended house plans

Sarah G1 Sarah G1
Euzebio Euzebio
Kuba G1 Kuba G1
Raul Raul
Kathy G1 Kathy G1
Kaja II G1 Kaja II G1
Zula Zula
E10 ENERGO PLUS E10 ENERGO PLUS
Iven G1 Iven G1
Katja Katja
E6 G1 ECONOMIC A E6 G1 ECONOMIC A
Ross G1 Ross G1
Pablo G1 Pablo G1
Markus G1 Markus G1
Olaf G2 Olaf G2
Ksena G1 Ksena G1
Print
Usable area:148.99m²
Interior area:224.57m²
• Garage19.43m²
• boiler-room5.99m²
• BasementNone
• AtticNone
house: with , traditional number of inhabitants : 2-4 garage: bay #1 fireplace: yes orangery: no Basement: no Building: stand alone house expansion: yes
Text search