House plans - Archipelag
Contact
Languages:
House plans
under 120m²
House plans
(120m²-160m²)
House plans
over 160m²
All
house plans
NEW house plans
Home page
»
House plans
»
House plan
Next house plan
Previous house plan
List of house plans
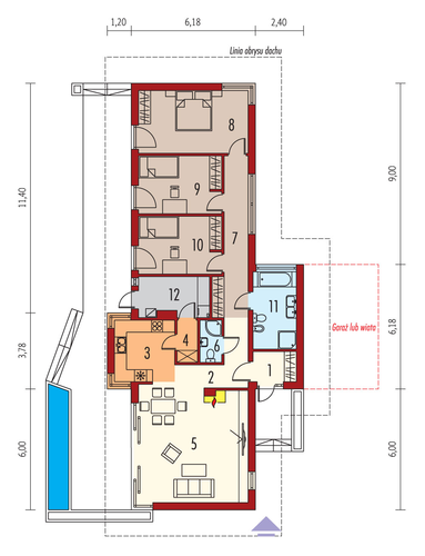
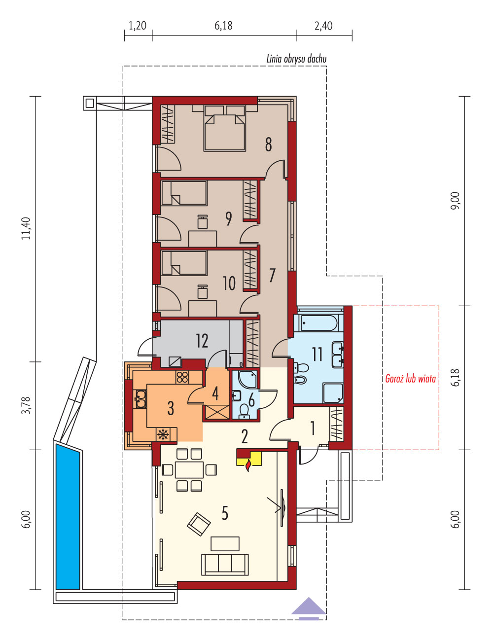
Bill II
Available house plan versions:
Version 1
,
Version 2
Author: Artur Wójciak
Next house plan
Previous house plan
List of house plans
Recommended house plans
Flow III
Flori III G1
Andrea
Alina
Alberta G1
Malina (v. I)
Selena G2
Flori II
Flori III
Eris G2 A
Flori III G1 ECONOMIC A
Bob II G1
Eris G2 C
Dylan G2
Selena II G1
Flow III G1
Print
Usable area:
112.68m²
Interior area:
125.22m²
• Garage
None
• boiler-room
7.08m²
• Basement
None
• Attic
None
Description and Visualization
Plans
Elevations
House plan animation
Project realizations
Mirror reverse format
Order a house plan
Ask a question
Send this link to your friend
Advanced search
Name
Kind
house
summer house
garage
Type
- Any -
one-storied
with
multi-storied house
Category
- Any -
by character
affordable
small
Author
- Any -
Area [m²]
To
Garage
- Any -
no
bay #1
bay#2
Basement
- Any -
No
Yes
Orangery
- Any -
No
Yes
Plot dimensions (length / width)
[m]
x
House height [m]
Roof angle [°]
Buildings
- Any -
stand alone house
duplex
row houses
Find a house plan
House plans
What does a house plan include?
Changes in a plan
Realisations
About us
Text search
Search
PL
EN
CZ
LT
RU
BY
UA