House plans - Archipelag
Contact
Languages:
House plans
under 120m²
House plans
(120m²-160m²)
House plans
over 160m²
All
house plans
NEW house plans
Home page
»
House plans
»
House plan
Next house plan
Previous house plan
List of house plans
Ben II G1
Available house plan versions:
Version 1
,
Version 2
,
Version 3
,
Version 4
Author: Agnieszka Owocka, Robert Wójciak
Next house plan
Previous house plan
List of house plans
Recommended house plans
Marise IV G1 ENERGO
Marise V G1 ENERGO
Rosalia G1
Melisa G1
Mariana II
Ty
Joanna G1
Virginia
Joli
Ida G1
Karii G1
Otyle
Zoey
Edde G1
Marcin II G2
Joli G1
Print
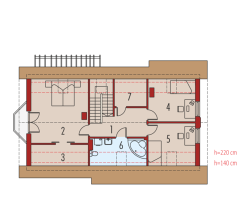
Usable area:
128.11m²
Interior area:
178.24m²
• Garage
19.37m²
• boiler-room
4.56m²
• Basement
None
• Attic
None
Description and Visualization
Plans
Elevations
House plan animation
Project realizations
Mirror reverse format
Order a house plan
Ask a question
Send this link to your friend
Advanced search
Name
Kind
house
summer house
garage
Type
- Any -
one-storied
with
multi-storied house
Category
- Any -
by character
affordable
small
Author
- Any -
Area [m²]
To
Garage
- Any -
no
bay #1
bay#2
Basement
- Any -
No
Yes
Orangery
- Any -
No
Yes
Plot dimensions (length / width)
[m]
x
House height [m]
Roof angle [°]
Buildings
- Any -
stand alone house
duplex
row houses
Find a house plan
House plans
What does a house plan include?
Changes in a plan
Realisations
About us
Text search
Search
PL
EN
CZ
LT
RU
BY
UA