House plans - Archipelag
Contact
Languages:
House plans
under 120m²
House plans
(120m²-160m²)
House plans
over 160m²
All
house plans
NEW house plans
Home page
»
House plans
»
House plan
Next house plan
Previous house plan
List of house plans
Ben G1
Available house plan versions:
Version 1
,
Version 2
,
Version 3
,
Version 4
Author: Agnieszka Owocka, Robert Wójciak
1. Vestibule
4.87 m²
6. Study
8.56 m²
2.
11.12 m²
7. Bathroom
2.01 m²
3. Kitchen
6.71 m²
8. Boiler room
4.56 m²
4. Pantry
2.73 m²
9. Garage
19.19 m²
5. Day-time stay room, dining-room
19.74 m²
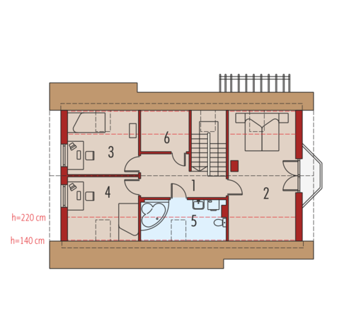
1. Corridor
9.11 m²
4. Bedroom
10.47 m²
2. Bedroom
20.03 m²
5. Bathroom
6.88 m²
3. Bedroom
10.24 m²
6. Wardrobe
3.96 m²
Next house plan
Previous house plan
List of house plans
Recommended house plans
Kalisto
Pam G1
Niobe
Sandy G2
Justin III G1
Remi G1
Percy G1
Melise G1
Jahn G1
Chess
Percy
Susan
Karii G1
Alma
Nikodem G1
Nicki A ENERGO
Print
Usable area:
116.43m²
Interior area:
164.17m²
• Garage
19.37m²
• Basement
None
• Attic
None
Description and Visualization
Plans
Elevations
House plan animation
Project realizations
Mirror reverse format
Order a house plan
Ask a question
Send this link to your friend
Advanced search
Name
Kind
house
summer house
garage
Type
- Any -
one-storied
with
multi-storied house
Category
- Any -
by character
affordable
small
Author
- Any -
Wójciak A.
Wójciak R.
Chmiel-Sobieralska J.
Fryszka A.
Górna A.
Jaworski M.
Marcjasz A.
Oczkowski M.
Romanowicz R.
Romanowicz M.
Tatarek A.
Chruszczewski Ł.
Jankowski E.
Kowalski A.
Krajewska-Ludwiczuk A.
Owocka A.
Pik G.
Simla M.
Szczepański W.
Area [m²]
To
Garage
- Any -
no
bay #1
bay#2
Basement
- Any -
No
Yes
Orangery
- Any -
No
Yes
Plot dimensions (length / width)
[m]
x
House height [m]
Roof angle [°]
Buildings
- Any -
stand alone house
duplex
row houses
Find a house plan
House plans
What does a house plan include?
Changes in a plan
Realisations
About us
Text search
Search
PL
EN
CZ
LT
RU
BY
UA