House plans - Archipelag
Contact
Languages:
House plans
under 120m²
House plans
(120m²-160m²)
House plans
over 160m²
All
house plans
NEW house plans
Home page
»
House plans
»
House plan
Next house plan
Previous house plan
List of house plans
Adamina G1
Author: Dorota Palmączyńska, Robert Wójciak
1. Vestibule
3.25 m²
7. Toilet
1.98 m²
2. Hall
14.95 m²
8. Wardrobe
4.25 m²
3. Kitchen
12.16 m²
9. Boiler room
4.31 m²
4. Dining room
17.17 m²
10. Utility room
6.12 m²
5. Daily room
27.18 m²
11. Garage
25.99 m²
6. Study
12.22 m²
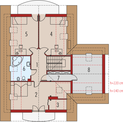
1. Corridor
8.23 m²
5. Bedroom
14.14 m²
2. Bedroom
19.36 m²
6. Bathroom
5.78 m²
3. Wardrobe
1.95 m²
7. Utility room
3.91 m²
4. Bedroom
14.13 m²
8. Attic
9.75 m²
Next house plan
Previous house plan
List of house plans
Recommended house plans
Mateus G2
Jedi
Anabell G2
Filipinka (v. II)
Iga G1
Dabra G1
Judy G1
Hely
Inez G2
Rafaela
Kinia G2
Iza G1
Tatiana G1
Malgorzata (v. I)
EX 9 G1 A
Milena G1
Print
Usable area:
166.78m²
Interior area:
256.39m²
• Garage
25.99m²
• boiler-room
4.31m²
• Basement
None
• Attic
9.75m²
Description and Visualization
Plans
Elevations
House plan animation
Project realizations
Mirror reverse format
Order a house plan
Ask a question
Send this link to your friend
Advanced search
Name
Kind
house
summer house
garage
Type
- Any -
one-storied
with
multi-storied house
Category
- Any -
by character
affordable
small
Author
- Any -
Area [m²]
To
Garage
- Any -
no
bay #1
bay#2
Basement
- Any -
No
Yes
Orangery
- Any -
No
Yes
Plot dimensions (length / width)
[m]
x
House height [m]
Roof angle [°]
Buildings
- Any -
stand alone house
duplex
row houses
Find a house plan
House plans
What does a house plan include?
Changes in a plan
Realisations
About us
Text search
Search
PL
EN
CZ
LT
RU
BY
UA